服务热线13598663687
立即咨询






关键词:提升设备,振动设备,给料机,科豪机械设备描 述:新乡市科豪机械有限公司位于河南第三大城市,豫北的经济、文化和交通中心。该公司是一家集设计、研发、生产制造于一体的**企业,主要从事提升、振动、给料等设备的生产研发。电话:朱经理 13598669591
在线咨询斗式提升机
一、斗式提升机产品概述:
斗式提升机是适用于垂直输送磨琢性较大的粉状、粒状、及小块状物料的提升机,如粮食、煤、水泥、碎矿石等,斗式提升机输送高度可达40m,斗式提升机其特点为:结构简单,运行平稳,掏取式装料,混合式或重力卸料,轮缘采用组合链轮,更换方便,链轮轮缘经特殊处理寿命长,斗式提升机下部如采用重力自动张紧装置,能保持恒定的张力,避免打滑或脱链,同时在料斗遇阻时,有一定的容让性能够有效地保护运动部件,斗式提升机物料温度不超过250℃。
二、斗式提升机主要特点:
1、斗式提升机运行平稳、输送效率高。
2、斗式提升机料斗形式多,应优先选用。
3斗式提升机适应性强、安装维修方便、寿命长。
4、斗式提升机整机体积小、转速高、确保快速均匀输送。
三、斗式提升机工作原理:
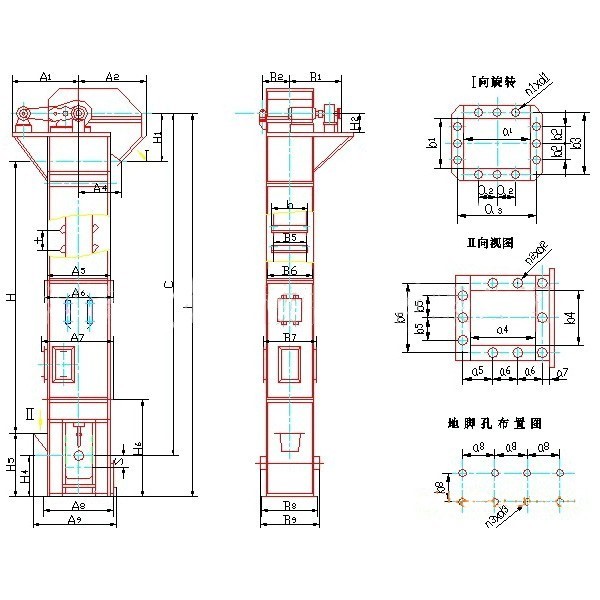
斗式提升机由运动部分(料斗与牵引链条)、带有传动链轮的斗式提升机上部区段、带有拉紧轮的斗式提升机下部区段、斗式提升机中间机壳、斗式提升机驱动装置、斗式提升机逆止制动装置等组成。该斗式提升机的料斗为间断式布置,利用“掏取法”进行装载,“离心投料法”卸料。该斗式提升机的牵引机构是两根环形链条。
四、主要技术参数:
型号 | TD160 | TD250 | TD315 | TD400 | ||||||||||||||||
料斗形式 | Q | H | Zd | Sd | Q | H | Zd | Sd | Q | H | Zd | Sd | Q | H | Zd | Sd | ||||
输送量(m³/h) | 5.4 | 9.6 | 9.6 | 16 | 12 | 22 | 23 | 35 | 17 | 30 | 25 | 35 | 24 | 46 | 41 | 66 | ||||
斗宽(mm) | 160 | 250 | 315 | 400 | ||||||||||||||||
斗容(L) | 0.5 | 0.9 | 1.2 | 1.9 | 1.3 | 2.2 | 3.0 | 4.6 | 2 | 3.6 | 3.8 | 5.8 | 3.1 | 5.6 | 5.9 | 9.4 | ||||
斗距(mm) | 280 | 350 | 360 | 450 | 400 | 500 | 480 | 560 | ||||||||||||
带宽(mm) | 200 | 300 | 400 | 500 | ||||||||||||||||
斗速(m/s) | 1.4 | 1.6 | 1.6 | 1.8 | ||||||||||||||||
物料**大块(mm) | 25 | 35 | 45 | 55 | ||||||||||||||||
功率(KW) | 4/5.5/7.5 | 5.5/7.5/11 | 7.5/11/15 | 11/15/18.5/22 | ||||||||||||||||
减速器 | ZQ35/ZQ40 | ZQ40/ZQ50 | ZQ40/ZQ50 | ZQ50/ZQ65 | ||||||||||||||||
型号 | TD500 | TD630 | D160 | D250 | D350 | D450 | ||||||||||||||
料斗形式 | Q | H | Zd | Sd | H | Zd | Sd | Q | S | Q | S | Q | S | Q | S | |||||
输送量(m³/h) | 38 | 70 | 58 | 92 | 85 | 89 | 142 | 4.7 | 8 | 18 | 22 | 25 | 42 | 50 | 72 | |||||
斗宽(mm) | 500 | 630 | 160 | 250 | 350 | 450 | ||||||||||||||
斗容(L) | 4.8 | 9.0 | 9.3 | 15 | 14 | 14.6 | 23.5 | 0.65 | 1.1 | 2.6 | 3.2 | 7 | 7.8 | 14.5 | 15 | |||||
斗距(mm) | 500 | 630 | 710 | 300 | 400 | 500 | 640 | |||||||||||||
带宽(mm) | 600 | 700 | 200 | 300 | 400 | 500 | ||||||||||||||
斗速(m/s) | 1.8 | 2 | 1 | 1.25 | 1.25 | 1.25 | ||||||||||||||
物料**大块(mm) | 60 | 70 | 25 | 35 | 45 | 55 | ||||||||||||||
功率(KW) | 15/18.5/22/30 | 22/30/37/45 | 1.18~1.86 | 4.2~5.9 | 5~6.5 | 7.5~9.8 | ||||||||||||||
减速器 | ZQ50/ZQ65 | ZQ68/ZQ75 | ZQ40 | ZQ40 | ZQ40 | ZQ50 | ||||||||||||||











新乡市科豪机械设备有限公司
电 话:13598663687 13598669591
传 真:0373-5858791
办公室地址:人民路和西环交叉口向北150米路西
厂区地址:人民路和西环交叉口向北150米路西
乘车路线:乘坐146公交车到金穗大道牧野大道站下车
邮 箱:xxkh968@163.com
网 址:http://www.xxkhjx.cn